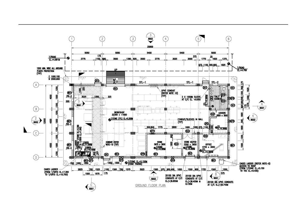
How to Prepare an Architectural Layout for a Workshop Building in Industrial Projects
Designing an architectural layout for a workshop building in an industrial project requires careful planning to optimize functionality, workflow, safety, and future expansion. The layout must consider operational requirements, zoning regulations, building codes, and environmental factors.
1. Key Considerations for Workshop Layout Design
a. Purpose of the Workshop
- Define the type of industry: Manufacturing, assembly, fabrication, repair, testing, or R&D.
- Identify equipment, machinery, and material flow requirements.
- Plan for storage areas, raw materials, finished goods, and waste disposal.
b. Site Selection & Orientation
- Choose a site with easy transportation access (roads, highways, rail).
- Optimize building orientation for natural lighting, ventilation, and energy efficiency.
- Ensure adequate setbacks, fire access routes, and landscaping.
c. Compliance with Regulations & Standards
- Follow local zoning laws and building codes (NBC, OSHA, NFPA, ISO).
- Consider environmental impact, fire safety norms, and waste management guidelines.
- Ensure worker safety provisions (exit routes, ventilation, hazardous area zoning).
2. Steps to Prepare an Architectural Layout
Step 1: Define Space Requirements
- Production Area
- Equipment/machinery layout.
- Workstations and assembly lines.
- Overhead crane/hoist requirements.
- Storage & Material Handling
- Raw material storage.
- Finished goods storage.
- Waste disposal zones.
- Utility & Service Areas
- Electrical room, compressor room, HVAC.
- Boiler, chiller, and water treatment plants.
- Administrative & Support Areas
- Office spaces, meeting rooms, and control rooms.
- Employee facilities (canteen, lockers, restrooms).
- Visitor reception and security rooms.
Step 2: Zoning and Space Planning
- Divide the building into functional zones for safety and efficiency.
- Use color coding in plans for quick identification.
| Zone | Purpose | Typical Requirements |
| Production Area | Main working area | Large spans, high ceilings, reinforced floors |
| Storage | Material handling | Racking system, ventilation, forklifts access |
| Utility Areas | Power & HVAC | Separate from main workspaces |
| Administrative | Office & planning | Noise insulation, access control |
| Employee Facilities | Comfort & safety | Proper lighting, ventilation, hygiene |
Step 3: Create a Conceptual Layout
- Start with sketches or 2D drawings using AutoCAD, Revit, or SketchUp.
- Consider movement paths for workers, forklifts, and materials.
- Ensure adequate circulation spaces and exit routes.
Step 4: Structural Considerations
- Column grid spacing: Typically 6m x 6m, 8m x 8m, or 10m x 10m for flexibility.
- Roof type: Steel truss, PEB (Pre-Engineered Buildings), RCC slab.
- Floor load capacity: Heavy-duty flooring for machinery (at least 5 kN/mยฒ).
Step 5: Electrical, Mechanical & Plumbing (MEP) Planning
- Allocate space for electrical panels, transformers, generator backup.
- Ensure fire-fighting provisions (hydrants, extinguishers, sprinklers).
- Provide adequate plumbing and drainage systems for waste disposal.
Step 6: Optimize for Safety & Efficiency
- Fire safety exits and proper escape routes as per NFPA/IS codes.
- Ventilation & exhaust systems for air quality.
- Noise reduction measures (acoustic insulation, buffer zones).
- Natural lighting & energy efficiency (skylights, LED lighting, solar panels).
Step 7: Develop Final Drawings & 3D Visualization
- Create detailed architectural blueprints with dimensions & annotations.
- Use 3D models for better visualization and approval.
- Ensure stakeholder review and approval before finalizing designs.
3. Software for Preparing Workshop Layout
- AutoCAD โ 2D drafting and workshop planning.
- Revit โ 3D BIM modeling for industrial buildings.
- SketchUp โ Quick 3D conceptual modeling.
- SolidWorks โ Equipment & machinery placement.
- ETABS/SAP2000 โ Structural analysis.
4. Example Layout of an Industrial Workshop Building
| Section | Key Features |
| Main Workshop Area | Large span, crane support, ventilation |
| Storage & Loading | Separate docks, forklifts access |
| Utility Areas | Power, HVAC, water supply rooms |
| Office & Admin | Workstations, conference rooms |
| Safety & Fire Exit | Emergency exits, muster points |
- Catch Basin Types and DetailsCatch basins are essential components of stormwater management systems. Theyโฆ Read more: Catch Basin Types and Details
- Foundation Detail Drawings for Buildings With CAD FilesA Practical Structural Drawing Guide Introduction Footing drawings form theโฆ Read more: Foundation Detail Drawings for Buildings With CAD Files
- Bar Bending Schedule | BBS Calculator For Beam Column and SlabManaging the Bar Bending Schedule (BBS) is one of theโฆ Read more: Bar Bending Schedule | BBS Calculator For Beam Column and Slab
- Room Paint Calculator | Paint, Primer & Putty Quantity & Cost EstimatorLooking to renovate your room? Our Room Paint, Primer &โฆ Read more: Room Paint Calculator | Paint, Primer & Putty Quantity & Cost Estimator
- Brick Wall Construction Calculator | Calculate Bricks & Cost Instantly |Introduction Building a brick wall requires accurate planning to avoidโฆ Read more: Brick Wall Construction Calculator | Calculate Bricks & Cost Instantly |
- Unit Converter โ Feet, Inches, cm, mm, Yard to Meter and Vice VersaLength Unit Converter ๐ Toggle Dark Mode Length Unit Converterโฆ Read more: Unit Converter โ Feet, Inches, cm, mm, Yard to Meter and Vice Versa
- Civil Engineering Interview Questions and Important Practical Foundation1. What factors affect the selection of foundation type? Soilโฆ Read more: Civil Engineering Interview Questions and Important Practical Foundation
- Road Turning Radius as per IS/IRC Codes and International Standards AASHTO BS/DMRB1. Turning Radius as per Indian Standards (IRC/IS Codes) Inโฆ Read more: Road Turning Radius as per IS/IRC Codes and International Standards AASHTO BS/DMRB
- Steel Staircase DesignIntroduction A steel staircase is no longer just an industrialโฆ Read more: Steel Staircase Design
- Steel Shed with Mezzanine FloorIntroduction In todayโs fast-paced industrial and commercial sectors, efficient useโฆ Read more: Steel Shed with Mezzanine Floor
- Structural Masonry Designers ManualThe use of masonry as the major structural material inhouse-buildingโฆ Read more: Structural Masonry Designers Manual
- Water Supply Piping Plan and Plumbing Schematic DiagramMale Toilet Plumbing Drawing Procedure Introduction Water supply and plumbingโฆ Read more: Water Supply Piping Plan and Plumbing Schematic Diagram
- Sump Pit DrawingBelow is a clear step-by-step procedure to prepare a Collectionโฆ Read more: Sump Pit Drawing
- Cage Ladder Detail Standard Drawing pdf Free DownloadCage ladders are a vital part of safe vertical accessโฆ Read more: Cage Ladder Detail Standard Drawing pdf Free Download
- Lintel Slab Layout DetailsIntroduction: In building construction, lintel slabs play a crucial roleโฆ Read more: Lintel Slab Layout Details
- PILE CAP Detail Drawing๐๐๏ธ ๐ Design Requirements A pile cap is a thickโฆ Read more: PILE CAP Detail Drawing
- Eurocode Load Combinations EN 1990 2002Understanding load combinations is essential for structural safety and serviceability.โฆ Read more: Eurocode Load Combinations EN 1990 2002
- Expansion Joint Detail and SpecificationEXPANSION JOINTS SHALL BE PROVIDED AT LOCATIONS AS SHOWN INโฆ Read more: Expansion Joint Detail and Specification
- Storm Water Drain Detail DrawingStorm water drains are critical infrastructure elements designed to collect,โฆ Read more: Storm Water Drain Detail Drawing
- Thrust Blocks and Restraints DetailsA thrust block is a mass of concrete placed atโฆ Read more: Thrust Blocks and Restraints Details
- Octagonal Foundation Reinforcement DetailsAn octagonal foundation is a specialized structural base often usedโฆ Read more: Octagonal Foundation Reinforcement Details
- Design of Pump Foundation Dynamic and Static AnalysisDesign workflow (step-by-step) 2) Loads you must consider (typical) 3)โฆ Read more: Design of Pump Foundation Dynamic and Static Analysis
- Electrical Layout For Residential BuildingCreating an electrical layout for a house involves planning theโฆ Read more: Electrical Layout For Residential Building
- Rain Water Gutter and Down Take SystemsTypical Gutter and Downpipe Systems: An Overview Understanding Rain Waterโฆ Read more: Rain Water Gutter and Down Take Systems
- Stormwater Drainage CalculationDesigning ๐ง๏ธ Stormwater Drainage systems is essential to ensure theโฆ Read more: Stormwater Drainage Calculation
- Structural Engineering Design Criteria โ American Codes and StandardsIn the United States, structural engineering design is governed byโฆ Read more: Structural Engineering Design Criteria โ American Codes and Standards
- Insert Plate Details & Drawing โ Embedded in Concrete StructuresInsert plates are embedded steel plates installed in concrete elementsโฆ Read more: Insert Plate Details & Drawing โ Embedded in Concrete Structures
- Anchor Bolt Details and Drawing โ Embedded in ConcreteAnchor bolts are crucial elements in structural and foundation systems,โฆ Read more: Anchor Bolt Details and Drawing โ Embedded in Concrete
- Staircase Layout and DetailsA staircase is an essential architectural element that provides verticalโฆ Read more: Staircase Layout and Details
- Guard House Layout and DetailsA guard house, also known as a security cabin orโฆ Read more: Guard House Layout and Details
- Pump Shed Structural Steel DrawingA pump shed is a small but critical structure designedโฆ Read more: Pump Shed Structural Steel Drawing
- Column BucklingIntroduction Structural dynamics problems deal with structures in motion. Examplesโฆ Read more: Column Buckling
- Moody Chart | Moment Reactions for Rectangular Plates |Introduction to Moodyโs Chart for Slab Design Moodyโs Chart isโฆ Read more: Moody Chart | Moment Reactions for Rectangular Plates |
- Standard Road DetailsRigid & Flexible Road Details โ Drawings & Requirements Roadโฆ Read more: Standard Road Details
- DG Building Architectural Plan & Finishing ScheduleA DG (Diesel Generator) building is a dedicated structure designedโฆ Read more: DG Building Architectural Plan & Finishing Schedule
- Technical Details for Wash Basin Section and ElevationA wash basin is an essential plumbing fixture used inโฆ Read more: Technical Details for Wash Basin Section and Elevation
- Tender Technical Specification for Plumbing and Sanitary worksTender Technical Specification for Factory buildings – Plumbing and Sanitaryโฆ Read more: Tender Technical Specification for Plumbing and Sanitary works
- Fencing Gate Details and RequirementsA fencing gate is an essential component of any secureโฆ Read more: Fencing Gate Details and Requirements
- Fencing Layout and Details For Transformer AreaTransformer fencing is an essential safety requirement to protect electricalโฆ Read more: Fencing Layout and Details For Transformer Area
- Fencing with Angle Post and Pipe Post Details & ArrangementsFencing using angle posts and pipe (dia) posts is widelyโฆ Read more: Fencing with Angle Post and Pipe Post Details & Arrangements
- Civil Engineering Formula Book | Pocket Guide pdf Free download |Civil Engineering Formula Book โ Essential Reference for Engineers Civilโฆ Read more: Civil Engineering Formula Book | Pocket Guide pdf Free download |
- Transformer Foundation with Soak Pit Layout and DetailsA transformer foundation with a soak pit is designed toโฆ Read more: Transformer Foundation with Soak Pit Layout and Details
- Grating Standard Details and SpecificationsGrating Details and Requirements Gratings are open-grid flooring systems madeโฆ Read more: Grating Standard Details and Specifications
- Chequered Plate Standard DetailsChequered Plate Standard Details A chequered plate (also known asโฆ Read more: Chequered Plate Standard Details
- Handrail Details for Steel Structural FloorsDetails and Requirements of Handrails for Steel Structural Floors Handrailsโฆ Read more: Handrail Details for Steel Structural Floors
- Cable Pull Pit Requirements and DetailsCable Pull Pit Requirements and Details A cable pull pitโฆ Read more: Cable Pull Pit Requirements and Details
- Laboratory Building Plan and Architecture DetailsLaboratory Building Plan Requirements for Industries Designing an industrial laboratoryโฆ Read more: Laboratory Building Plan and Architecture Details
- Structural Bolt Details Types Grades and ApplicationsStructural Bolt Details: Types, Grades, and Applications Structural bolts areโฆ Read more: Structural Bolt Details Types Grades and Applications
- Finishing Schedule Drawing for Doors, Windows, and Rolling ShuttersHow to Prepare a Finishing Schedule Drawing for Doors, Windows,โฆ Read more: Finishing Schedule Drawing for Doors, Windows, and Rolling Shutters
- Workshop Building Architectural LayoutHow to Prepare an Architectural Layout for a Workshop Buildingโฆ Read more: Workshop Building Architectural Layout
- Calculation of Foundation Bearing Capacity as per IS 6403 – 1981The IS 6403:1981 standard provides guidelines for calculating the bearingโฆ Read more: Calculation of Foundation Bearing Capacity as per IS 6403 – 1981
- Terzaghiโs Bearing Capacity Calculation For FoundationsHow to Calculate Bearing Capacity of a Foundation The bearingโฆ Read more: Terzaghiโs Bearing Capacity Calculation For Foundations
- DESIGN AND CONSTRUCTION METHOD OF MULTISTORY CONCRETE BUILDINGSThe recommendations which should be taken into account in designingโฆ Read more: DESIGN AND CONSTRUCTION METHOD OF MULTISTORY CONCRETE BUILDINGS
- Civil Structural Engineering Interview Questions pdf Free DownloadAre you preparing for a Civil or Structural Engineering jobโฆ Read more: Civil Structural Engineering Interview Questions pdf Free Download
- Civil Structural Engineering Interview QuestionsCivil & Structural Engineering Interview Questions Hereโs a comprehensive listโฆ Read more: Civil Structural Engineering Interview Questions
- SHEAR FORCE AND BENDING MOMENT DIAGRAMS WITH FORMULAIntroduction Figures 1 through 32 provides a series of shearโฆ Read more: SHEAR FORCE AND BENDING MOMENT DIAGRAMS WITH FORMULA
- Weathering Course in RCC RoofProcedure for Weathering Course in RCC Roof A weathering courseโฆ Read more: Weathering Course in RCC Roof
- Rolling Shutter Fixing Detail with RCC BeamRolling Shutter Fixing Detail with RCC Beam Rolling shutters areโฆ Read more: Rolling Shutter Fixing Detail with RCC Beam
- Duct Bank Details and Pipe Sleeves DetailsDuct Bank Details and Pipe Sleeves Details A duct bankโฆ Read more: Duct Bank Details and Pipe Sleeves Details
- Handrail Details | Construction Methods and Types of Handrail |Methods of Typical Handrail Construction in RCC Structures Handrails inโฆ Read more: Handrail Details | Construction Methods and Types of Handrail |
- Details of RampMethods and Details of Ramp Construction Ramps are inclined surfacesโฆ Read more: Details of Ramp
- Design Calculation of Steel Shelter โ AISC 360PURPOSE AND SCOPE The scope of this document is toโฆ Read more: Design Calculation of Steel Shelter โ AISC 360
- Cage Ladder Specification and Detail DrawingDetailed Specification for Steel Cage Ladders Steel cage ladders areโฆ Read more: Cage Ladder Specification and Detail Drawing
- Concrete Beam Design as per Canadian Code (CSA A23.3-19)Concrete Beam Design as per Canadian Code (CSA A23.3-19) Theโฆ Read more: Concrete Beam Design as per Canadian Code (CSA A23.3-19)
- Fencing Detail DrawingFencing Detail Drawing Requirements To create a comprehensive fencing detailโฆ Read more: Fencing Detail Drawing
- RCC Fencing Post DetailsRequirements for RCC Fence Posts RCC (Reinforced Cement Concrete) postsโฆ Read more: RCC Fencing Post Details
- Gypsum Board False Ceiling InstallationGypsum board false ceiling installation layout and details Installing aโฆ Read more: Gypsum Board False Ceiling Installation
- Design of Anchor Reinforcement in Concrete PedestalsDesign of Anchor Reinforcement in Concrete Pedestals Pedestal rebars parallelโฆ Read more: Design of Anchor Reinforcement in Concrete Pedestals
- Wind Load Calculation as Per Indian CodeWind Load Calculation Wind speed -33m/sec From Ground floor toโฆ Read more: Wind Load Calculation as Per Indian Code
- DESIGN BASIS FOR CIVIL AND STRUCTURALDesign Basis for Civil and Structural SPECIFIC DESIGN REQUIREMENTS [CIVIL]โฆ Read more: DESIGN BASIS FOR CIVIL AND STRUCTURAL
- General Specification for Civil and Structural WorksCONTENTS CLAUSE NO. DESCRIPTION PAGE NO. 1.00.00 INTRODUCTION 1 2.00.00โฆ Read more: General Specification for Civil and Structural Works
- Green BuildingA green building is a structure designed, constructed, and operatedโฆ Read more: Green Building
- Fireproofing DetailsFireproofing, also known as fire-resistive protection, is crucial for structuralโฆ Read more: Fireproofing Details
- Response Spectrum Analysis in STAAD proIn STAAD.Pro, combining loads using the SRSS (Square Root ofโฆ Read more: Response Spectrum Analysis in STAAD pro
- SHELTER WITH 25T CRANE DRAWING | PEB SHED |Designing a shelter with a 25-ton capacity crane involves structuralโฆ Read more: SHELTER WITH 25T CRANE DRAWING | PEB SHED |
- MONORAIL DETAILSTo create a monorail drawing connected to a concrete beam,โฆ Read more: MONORAIL DETAILS
- Lifting Padeye DesignPadeye is a plate or attachment point commonly used inโฆ Read more: Lifting Padeye Design
- Corbel Design and DetailsDESIGN OF CORBEL A corbel is a short cantilever usedโฆ Read more: Corbel Design and Details
- BEHAVIOUR OF STEEL CHIMNEY UNDER DYNAMIC LOADINGSIntroducing Steel Chimneys or Stack The behavior of steel chimneysโฆ Read more: BEHAVIOUR OF STEEL CHIMNEY UNDER DYNAMIC LOADINGS
- DESIGN OF WIND PRESSURE AS PER EN 1991-1-4The calculation for wind load as per EN 1991-1-4 for a gas plant located in a terrain category I includes parameters such as a fundamental basic wind velocity of 32.30 m/s, a directional factor and season factor of 1.00 each, and various terrain factors and roughness lengths. Wind turbulence intensity and peak velocity pressure vary with height.
- Grade Slab DetailsPaving or Grade slab Details A grade slab, also knownโฆ Read more: Grade Slab Details
- Resort Cottage PlanDesigning a cottage plan involves creating a cozy, functional, andโฆ Read more: Resort Cottage Plan
- CONCRETE BATCHING PLANT ARRANGEMENTA well-designed batching plant arrangement ensures efficient concrete production, safety,โฆ Read more: CONCRETE BATCHING PLANT ARRANGEMENT
- LOAD COMBINATIONS NBCC 2023LOAD COMBINATIONS CANADIAN CODE NBCC 2023 The National Building Codeโฆ Read more: LOAD COMBINATIONS NBCC 2023
- STEEL SHED DRAWING1. Plan View (Top View): Outline of the Shed: Showโฆ Read more: STEEL SHED DRAWING
- Plumbing DrawingCreating a plumbing scheme drawing involves outlining the entire plumbingโฆ Read more: Plumbing Drawing
- Pre Engineered Building Design Specification IS CodePre-Engineered Building PEB PEB stands for Pre-Engineered Building. It refersโฆ Read more: Pre Engineered Building Design Specification IS Code
- BATHROOM FIXTURES AND FITTINGS – European Closet, Urinal & Wash BasinBATHROOM FIXTURES AND FITTINGS European Closet โ fitting dimensions Forโฆ Read more: BATHROOM FIXTURES AND FITTINGS – European Closet, Urinal & Wash Basin
- Design of Pipe Support Foundation CalculationDesign of Pipe Support Foundation Calculation Piping Input: GA andโฆ Read more: Design of Pipe Support Foundation Calculation
- Design of Concrete Anchor BlocksSTATIC ANALYSIS & DESIGN OF PIPE ANCHOR BLOCK FOUNDATION DESIGNโฆ Read more: Design of Concrete Anchor Blocks
- PEB Shed DrawingPEB – Industrial standard architectural drawing with all details.






